2 d cad drawing of Concrete bridge auto cad software
Description
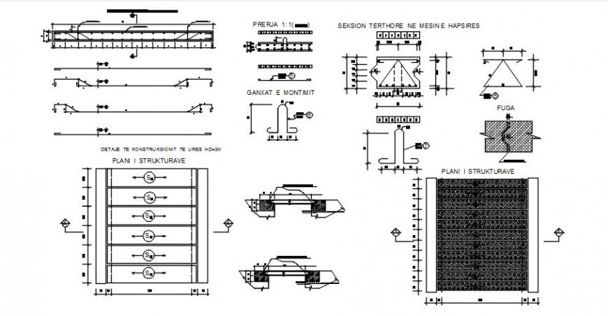
2d cad drawing of Concrete bridge autocad software detailed with given feature for the plan with concrete detailing and been mentioned with description and dimension and plan struture seen in drawing row wise.
Uploaded by:
Eiz
Luna

