Kitchen area detailing drawings 2d view plan AutoCAD file
Description
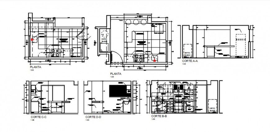
Kitchen area detailing drawings 2d view plan AutoCAD file that shows kitchen floor plan details of kitchen area along with kitchen automation blocks dteials and dimension Section line and sectional dteials of the kitchen also included in drawings.
Uploaded by:
Eiz
Luna

