CAD public sanitary toilet plan detailing drawings in autocad file
Description
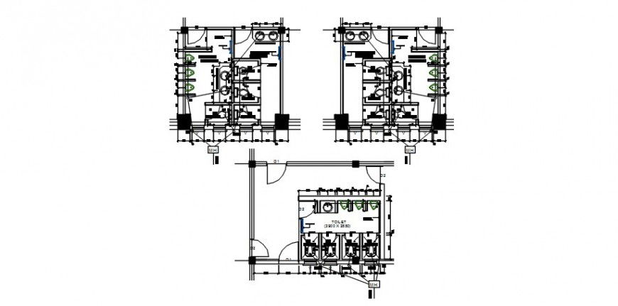
CAD public sanitary toilet plan detailing drawings in autocad file that shows a work plan of the saniatry public toilet along with sanitary blocks details of watercloset washbasin and door ventilation detials also included in drawings.
File Type:
DWG
File Size:
1 MB
Category::
Dwg Cad Blocks
Sub Category::
Sanitary CAD Blocks And Model
type:
Gold
Uploaded by:
Eiz
Luna

