Two story residential apartment drawings dteials in autocad file
Description
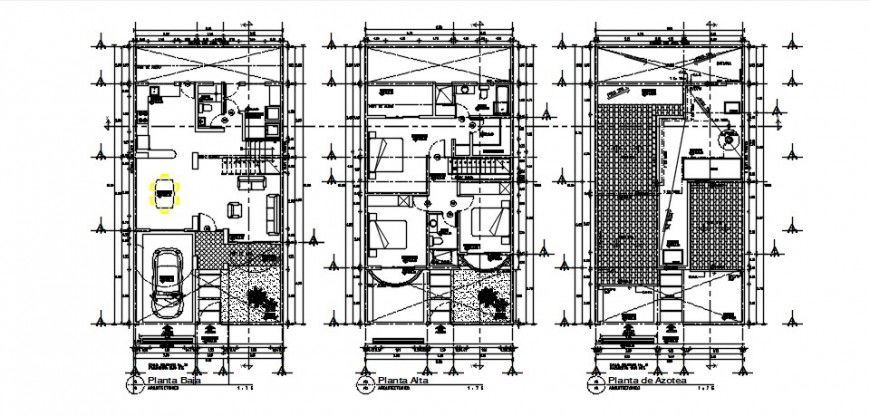
Two story residential apartment drawings dteials in autocad file that shows the work plan of the house along with floor level detail and furniture layout detail in the house. Room details include details of drawing room bedroom kitchen and dining area along with sanitary toilet and bathroom area details also included in drawings.
Uploaded by:
Eiz
Luna

