2d CAD construction details of RCC structural blocks dwg file
Description
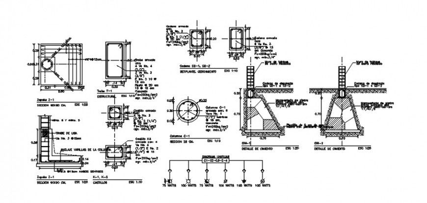
2d CAD construction details of RCC structural blocks dwg file that shows reinforcement details in tension and compression zone along with main and distrubution hook up and bent up bars dteials. Footing details with stirrups details to hold up bars in position effective and clear cover dteials also included in drawings.
File Type:
DWG
File Size:
1.7 MB
Category::
Construction
Sub Category::
Reinforced Cement Concrete Details
type:
Gold
Uploaded by:
Eiz
Luna

