2d CAD electrical installation details in apartment dwg file
Description
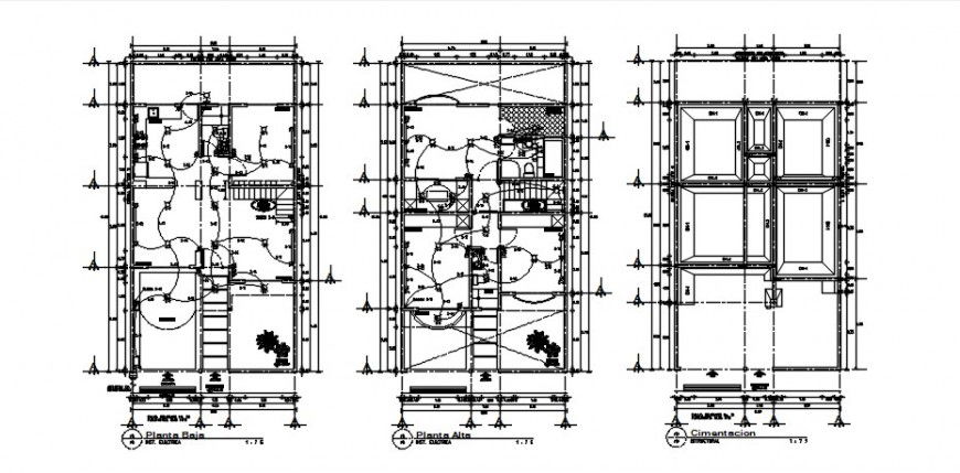
2d CAD electrical installation details in apartment dwg file that shows electrical wirings dteials along with fuse circuits earthing wire details and floor level dimension hidden line details also included in drawings.
Uploaded by:
Eiz
Luna

