2d Drawings details of sanitary toilet area center line plan dwg file
Description
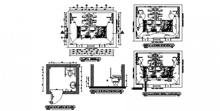
2d Drawings details of sanitary toilet area center line plan dwg file that shows work plan of the saniatry public toilet along with sanitary blocks details of watercloset washbasin and door ventilation detials also inlcuded in drawings.
File Type:
DWG
File Size:
291 KB
Category::
Dwg Cad Blocks
Sub Category::
Sanitary CAD Blocks And Model
type:
Gold
Uploaded by:
Eiz
Luna

