2d Drawings details of Apartment building units elevation and section dwg file
Description
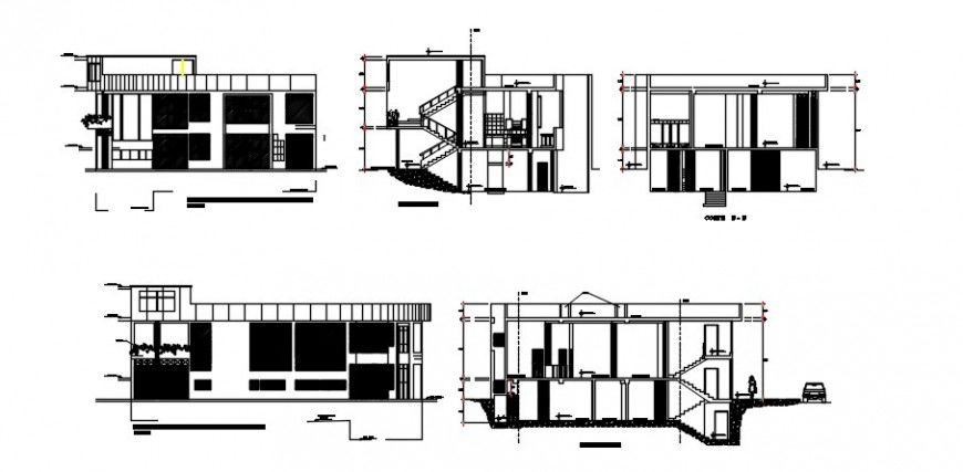
2d Drawings details of Apartment building units elevation and section dwg file that shows different sides of elevation of the housing apartment along with sectional detials of apartment and leveling staircase details also included in drawings.
Uploaded by:
Eiz
Luna

