Educational institute building units drawings with electrical installation dwg file
Description
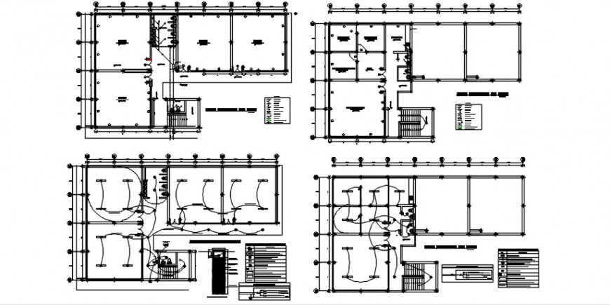
Educational institute building units drawings with electrical installation dwg file that shows work plan drawings detials along with floor level dteials and dimension hidden line dteials.Section line detail with specification detials building electrical installation dteials also included in drawings.
Uploaded by:
Eiz
Luna

