Floor plan of housing apartment drawings 2d view AutoCAD software file
Description
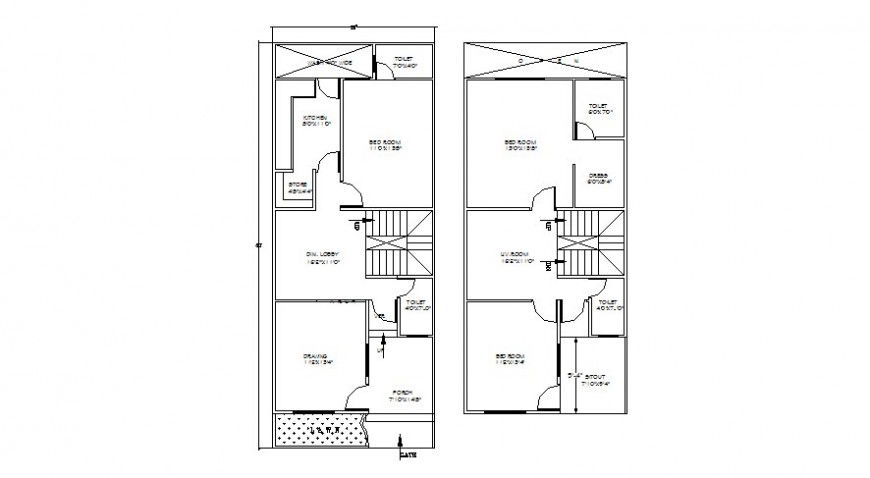
Floor plan of housing apartment drawings 2d view AutoCAD software file that shows work plan of the house along with room interior dimension and room includes details of bedroom aea drawings room area with kitchen and dining area details and staircase details. Door window blocks details and staircase sanitary toilet area details.
Uploaded by:
Eiz
Luna

