Construction details of roofing structure and footing autocad file
Description
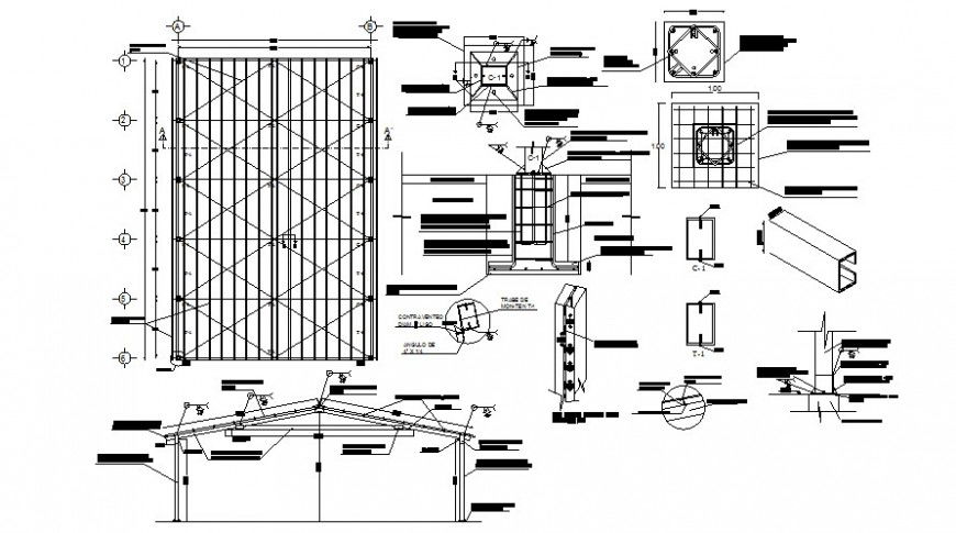
Construction details of roofing structure and footing autocad file that shows roof plan details along with footing foundation structure details with reinforcement details in tension and compression zone with main and distribution hook up and bent up bars details and the structure is a reinforced concrete cement (RCC) structure.
File Type:
DWG
File Size:
478 KB
Category::
Construction
Sub Category::
Reinforced Cement Concrete Details
type:
Gold
Uploaded by:
Eiz
Luna

