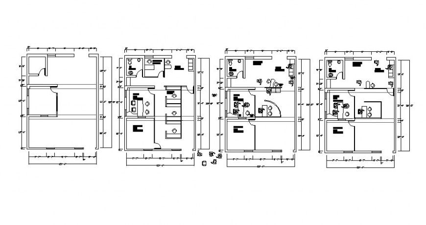
2d view floor plan drawings of office building autocad software file
Description
2d view floor plan drawings of office building autocad software file that show work plan drawings details of building units along with furniture layout details with staircase details and various other details of building blocks.
Uploaded by:
Eiz
Luna

