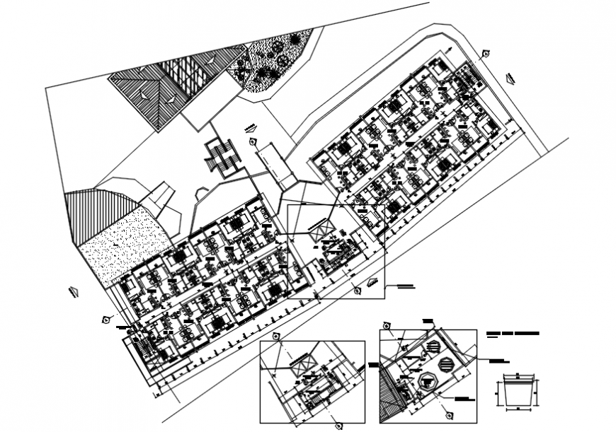
Plan with pavement detail of hotel in AutoCAD file
Description
Plan with pavement detail of hotel in AutoCAD file plan include detail of area of hotel and main entrance wall door position suit room with washing area and detail of pavement with necessary detail.
Uploaded by:
Eiz
Luna

