Foundation plan construction view with beam and column in AutoCAD file
Description
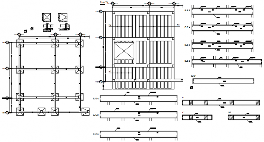
Foundation plan construction view with beam and column in AutoCAD file plan include area distribution wall and beam with column its distribution and column and beam detail with construction detail.
File Type:
DWG
File Size:
473 KB
Category::
Construction
Sub Category::
Construction Detail Drawings
type:
Gold

Uploaded by:
Eiz
Luna

