Government civic Centre second floor plan in AutoCAD
Description
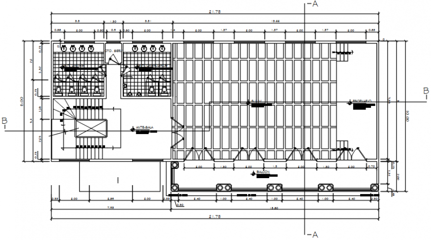
Government civic Centre second floor plan in AutoCAD plan include area distribution with entry way office and washing area with finished floor lobby door and window position and important dimension in plan.
Uploaded by:
Eiz
Luna

