Housing bungalow drawings detail 2d view plan elevation and section in autocad software
Description
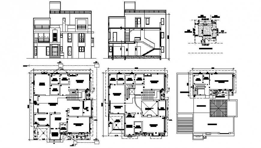
Housing bungalow drawings detail 2d view plan elevation and section in autocad software that shows the work plan of the house along with details of room dimension and level details. Room details include details of drawings room area bedroom area kitchen and sanitary toilet details. House different sides of elevation and sectional details of the house also shown in drawings.
Uploaded by:
Eiz
Luna

