Foundation plan, ceiling plan, cover plan and construction cad drawing details dwg file
Description
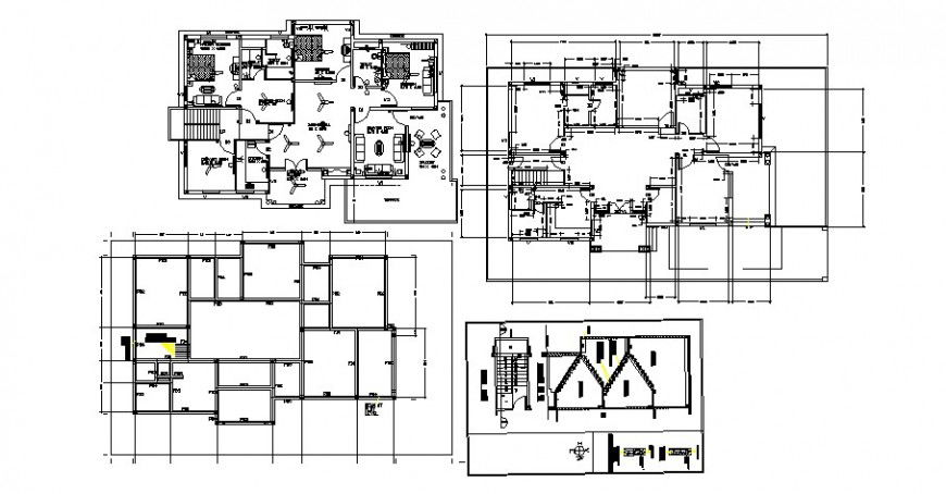
Foundation plan, ceiling plan, cover plan and construction cad drawing details here you cad found a free auto-cad file with the foundation with side typical shoe & typical central shoe with columns and foundations shoes, cistern tank and walls of concrete arm beams flat and pearled beams with foundation beams and typical detail of reinforcement, ceiling details and much more of bungalow details.
Uploaded by:
Eiz
Luna
