Drawings 2d view layout plan of housing units autocad software file
Description
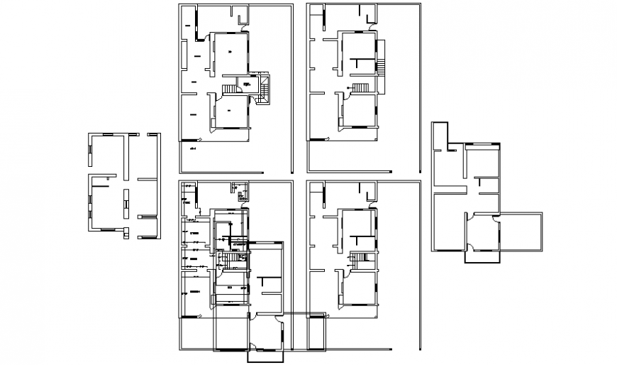
Drawings 2d view layout plan of housing units autocad software file that shows work plan drawings details of building along with staircase and floor level details. Floor level details and door window blocks details also shown in drawings.
Uploaded by:
Eiz
Luna

