Butterfly valve chamber and plumbing structure cad drawing details dwg file
Description
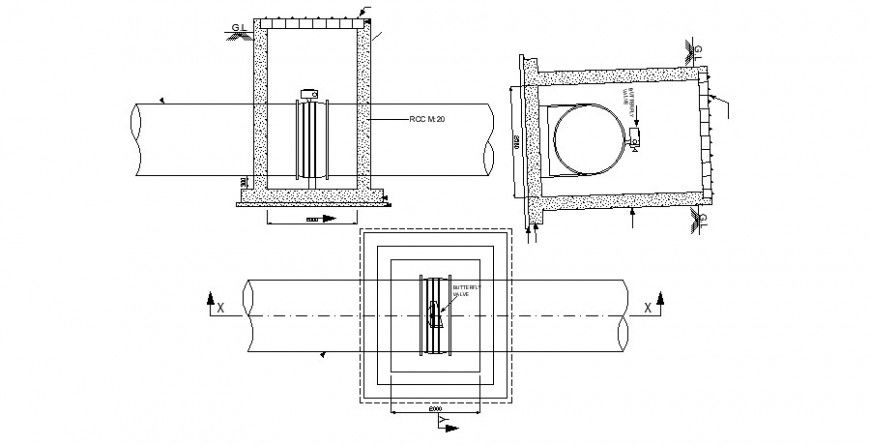
Butterfly valve chamber and plumbing structure cad drawing details that includes a detailed view of controller-to-valve details & wiring diagram, pipe and wire trenching, main isolation valve assembly control valve assembly with air / vacuum relief valve, drain/flush valve, dripper for palms and trees and much more of plumbing details.
Uploaded by:
Eiz
Luna
