Stairway construction details 2d view plan and elevation AutoCAD file
Description
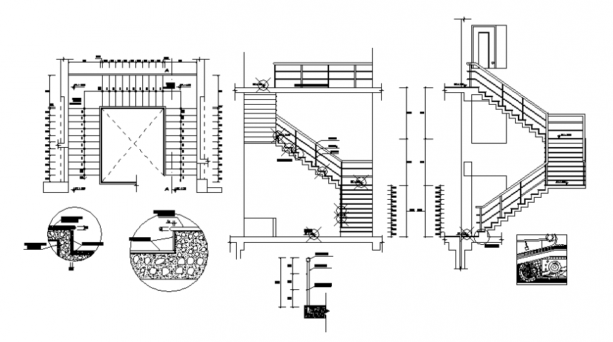
Stairway construction details 2d view plan and elevation AutoCAD file that shows the plan of staircase construction with riser and treads details and side elevation of staircase details also shown in the drawing. Riser height and tread width details also shown in drawings with railing details.
Uploaded by:
Eiz
Luna
