Floor plan and elevation of housing area and roof plan in AutoCAD file
Description
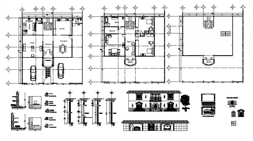
Floor plan and elevation of housing area and roof plan in AutoCAD file plan include detail of wall area distribution parking area and bedroom kitchen and washing area and roof plan include terrace area, elevation include wall and floor area in view.
Uploaded by:
Eiz
Luna

