Housing units drawings details 2d view layout work plan autocad file
Description
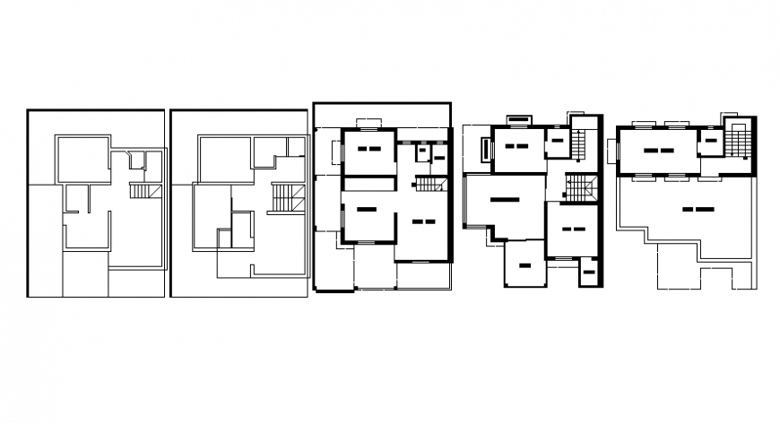
Housing units drawings details 2d view layout work plan autocad file autocad that shows room dimension details with staircase details. Room details includes details of bedroom area kitchen and dining area drawigs room and sanaitry toilet area details with room dimension details and staircase details.
Uploaded by:
Eiz
Luna

