Three floor distribution plan details of apartment building dwg file
Description
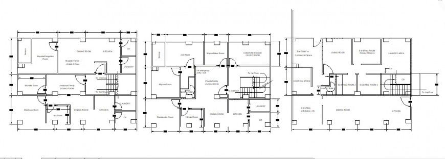
Three floor distribution plan details of apartment building that includes a detailed view of ground, first etc with car parking area, garden area with main entry house door, drawing room and living room with family hall details kitchen and dining area, indoor staircases and laundry area and balcony, details and bedroom or master bedroom, toilets and bathroom with indoor doors, furniture details and much more of apartment building project.
Uploaded by:
Eiz
Luna

