Hotel elevation cad file
Description
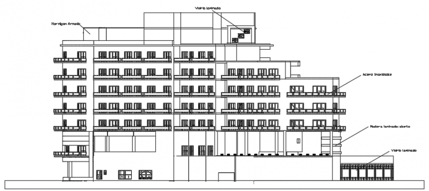
Autocad file showing elevation of a hotel with all the details including window details, balcony projections, area specification, window details, m aterial specification, etc.
Uploaded by:
Eiz
Luna
Autocad file showing elevation of a hotel with all the details including window details, balcony projections, area specification, window details, m aterial specification, etc.
Uploaded by:
Luna