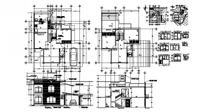
Hotel floor plan and elevation with detail in AutoCAD file
Description
Hotel floor plan and elevation with detail in AutoCAD file plan include area distribution and wall surface of flooring bedroom kitchen and washing area in view,elevation include detail of floor and floor level with stair and wall support with necessary detail.
Uploaded by:
Eiz
Luna
