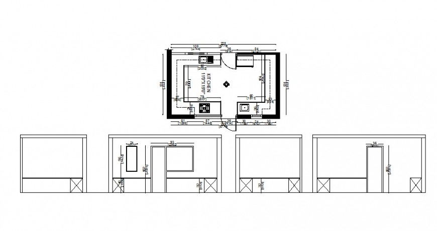
Kitchen plan and different axis elevation in AutoCAD file
Description
Kitchen plan and different axis elevation in AutoCAD file plan include detail of wall and door with circulation area of kitchen entrance and platform view of kitchen with stove and sink elevation include detail of wall and its support and many kitchen elevation in view.
Uploaded by:
Eiz
Luna

