Sanitary installation floor plan of residential area in AutoCAD
Description
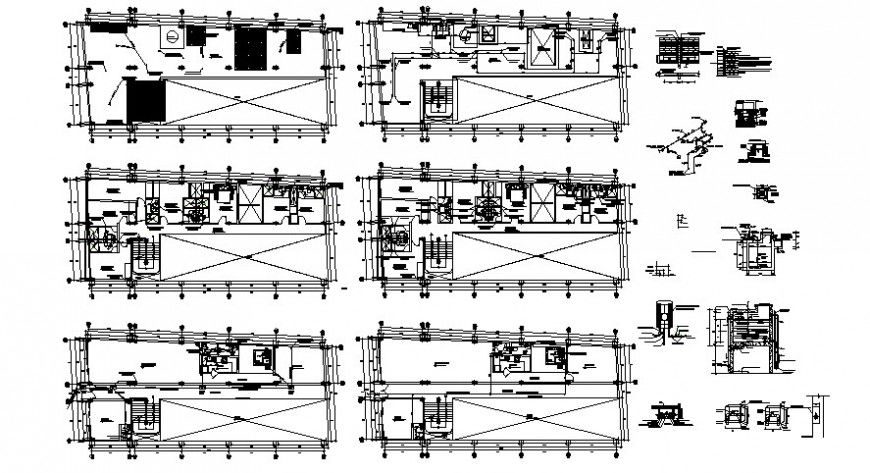
Sanitary installation floor plan of residential area in AutoCAD its include detail of area distribution with wall and entry way of house area with washing area and single water and its joint and control system in view of house.
File Type:
DWG
File Size:
735 KB
Category::
Dwg Cad Blocks
Sub Category::
Sanitary CAD Blocks And Model
type:
Gold

Uploaded by:
Eiz
Luna

