Beam detail with column foundation in construction view of AutoCAD
Description
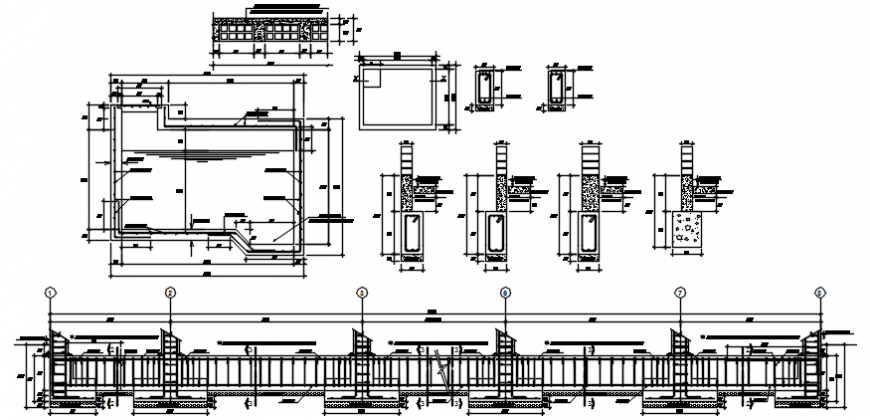
Beam detail with column foundation in construction view of AutoCAD its include detail of elevation of beam and its length column position on beam with necessary dimension, roof area in angular support of column detail.
File Type:
DWG
File Size:
1.5 MB
Category::
Construction
Sub Category::
Construction Detail Drawings
type:
Gold

Uploaded by:
Eiz
Luna

