Housing residential bungalow drawings 2d view floor plan and elevation dwg file
Description
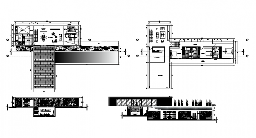
Housing residential bungalow drawings 2d view floor plan and elevation dwg file that shows work plan of the house along with furniture layout details in house and roo details includes details of bedroom area kitchen and dining area drawings room with sanitary toilet and bathroom area details. House front elevation details are also shown in drawings.
Uploaded by:
Eiz
Luna

