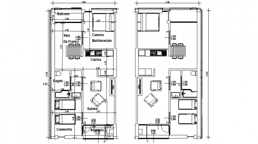
Two stories residential housework floor plan in autocad drawings
Description
Two stories residential housework floor plan in autocad drawings that shows work plan of the house along with furniture layout details in house and roo details includes details of bedroom area kitchen and dining area drawings room with sanitary toilet and bathroom area details.
Uploaded by:
Eiz
Luna

