Single story apartment plan and sanitary bathroom details in autocad
Description
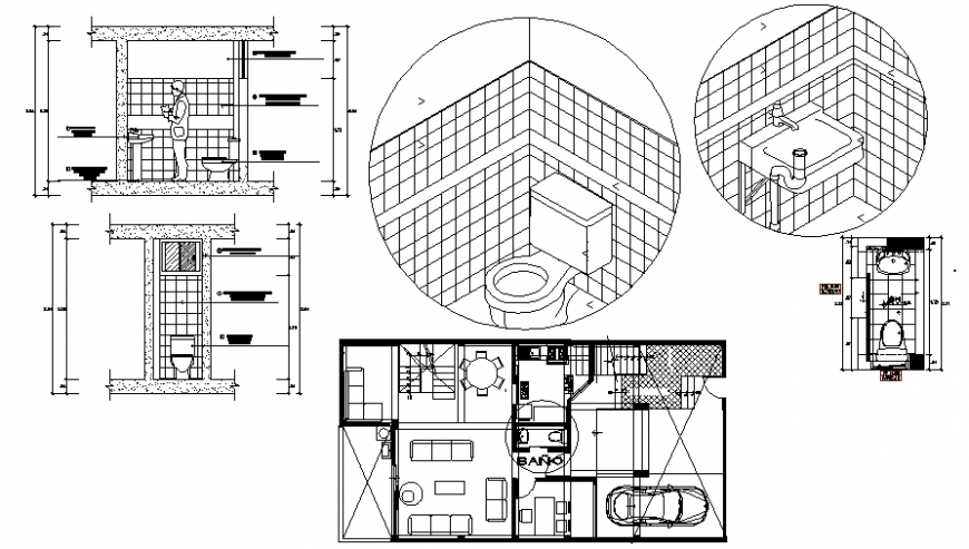
Single story apartment plan and sanitary bathroom details in autocad that shows work plan of house with furniture blocks details and furniture layout details in house. Room details include details of drawings room bedroom details kitchen dining area with sanitary toilet and bathroom details also shown in drawings.
Uploaded by:
Eiz
Luna

