Housing units drawings 2d view work layout plan autocad file
Description
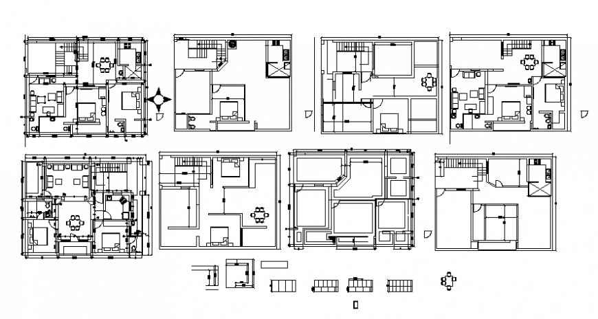
Housing units drawings 2d view work layout plan autocad file that shows work plan of house with furniture blocks details and furniture layout details in house. Room details include details of drawings room bedroom details kitchen dining area with sanitary toilet and bathroom details are also shown in drawings.
Uploaded by:
Eiz
Luna

