Housing units floor plan drawings with a footing structure autocad file
Description
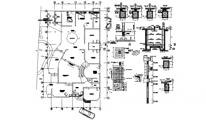
Housing units floor plan drawings with a footing structure autocad file that shows a work plan of building drawings with foundation plan and footing structure details and dimension details. Concrete masonry details and reinforcement details in tension and compression zone with furniture details in house also shown in drawings.
Uploaded by:
Eiz
Luna

