Office furniture detailing model
Description
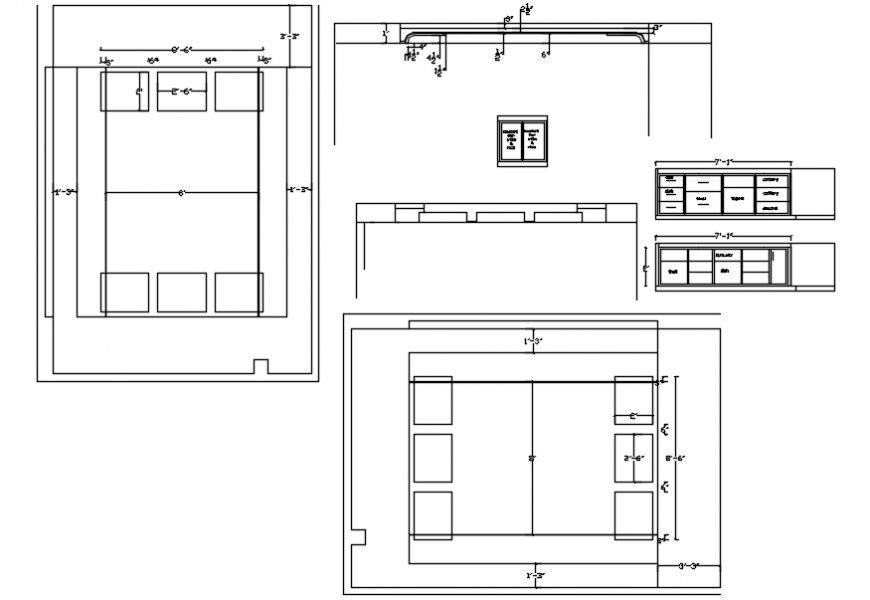
Office furniture detailing file. Here there is front office furniture detailing with all necessary furniture details in auto cad format
File Type:
DWG
File Size:
278 KB
Category::
Interior Design
Sub Category::
Modern Office Interior Design
type:
Gold
Uploaded by:
Eiz
Luna

