Interior project of house top view
Description
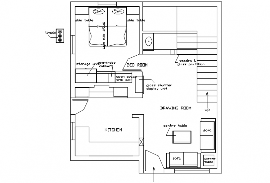
Interior project dwg file, here there is top view layout plan of a house,containing furniture details,sofa, dining, kitchen and wash area plan detailing.
Uploaded by:
Eiz
Luna
Interior project dwg file, here there is top view layout plan of a house,containing furniture details,sofa, dining, kitchen and wash area plan detailing.
Uploaded by:
Luna