2d view housing units floor plan elevation and section dwg file
Description
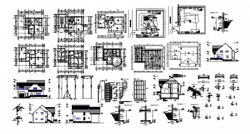
2d view housing units floor plan elevation and section dwg file that shows work pan drawings of house and house different sides of elevation and sectional details with leveling and room dimension details also shown in drawings.Roof plan details and room details of a drawing room bedroom area with kitchen and dining area and other details also shown in drawings.
Uploaded by:
Eiz
Luna

