Drawings 2d view of door blocks autocad software file
Description
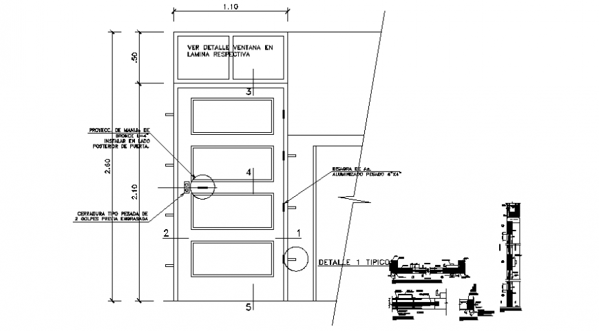
Drawings 2d view of door blocks autocad software file that shows door elevation and sectional details of door alos shown in drawings.lintel and door other details also shown in drawings.
File Type:
DWG
File Size:
492 KB
Category::
Dwg Cad Blocks
Sub Category::
Windows And Doors Dwg Blocks
type:
Gold
Uploaded by:
Eiz
Luna

