Kitchen units plan and elevation 2d view autocad file
Description
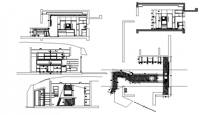
Kitchen units plan and elevation 2d view autocad file that shows the floor plan of kitchen units along with dimension details and platform details and kitchen automation and furniture blocks details. elevation dimension details also are shown in drawings.
File Type:
DWG
File Size:
992 KB
Category::
Construction
Sub Category::
Kitchen And Remodeling Details
type:
Gold
Uploaded by:
Eiz
Luna

