RCC structural units with brick masonry wall details in autocad
Description
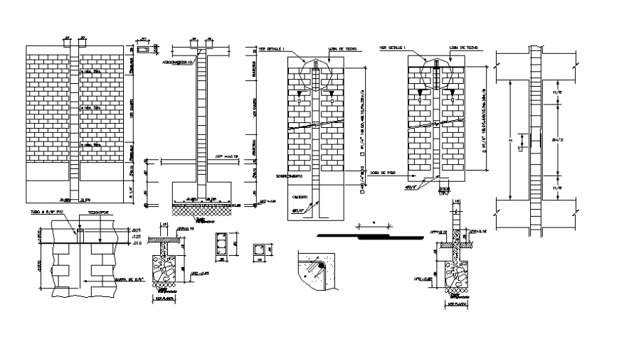
RCC structural units with brick masonry wall details in autocad that shows reinforcement details in tension and compression zone along with brick masonry wall details. Main and distribution hook up and bent up bars details with concrete masonry details also shown in drawings and the structure is a reinforced concrete cement (RCC) structure.
File Type:
DWG
File Size:
226 KB
Category::
Construction
Sub Category::
Reinforced Cement Concrete Details
type:
Gold
Uploaded by:
Eiz
Luna

