House floor plan drawings with section details 2d view autocad file
Description
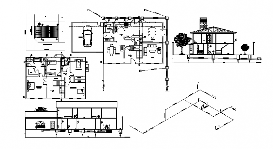
House floor plan drawings with section details 2d view autocad file that shows work plan of housing units along with furniture details in house and floor level details.room details of a drawing room bedroom area with kitchen and dining area and other details also shown in drawings. House sections details and roofing structure details also shown in drawings.
Uploaded by:
Eiz
Luna

