Autocad drawing of floor plans of a residential building
Description
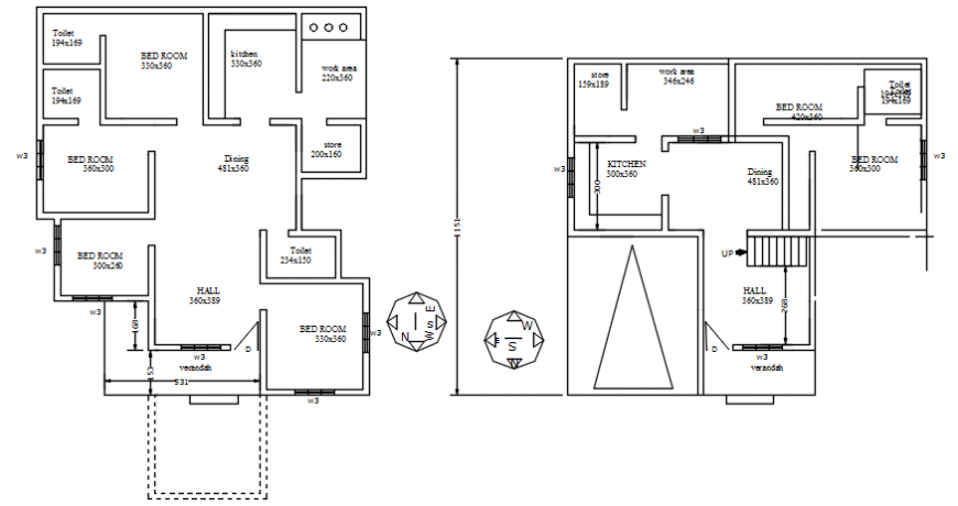
Autocad drawing of floor plans of a residential building showing all required details like wall thickness with door-window openings, furniture layout with circulation space, area specification with area dimenions, etc.
Uploaded by:
Eiz
Luna
