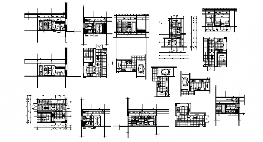
Section and elevation of housing units 2d view autocad file
Description
Section and elevation of housing units 2d view autocad file that shows work plan of housing units along with furniture details in the house and floor level details.room details of a drawings room bedroom area with kitchen and dining area and other details also shown in drawings. House sections details and different sides of elevation details also shown in drawings.
Uploaded by:
Eiz
Luna

