Wooden showcase furniture drawings 2d view autocad file
Description
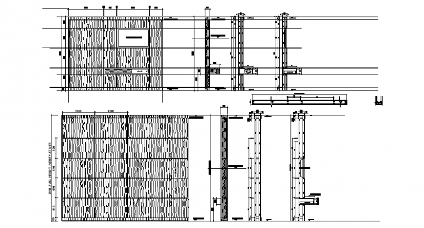
Wooden showcase furniture drawings 2d view autocad file that shows shelves and racks furniture blocks and section line with sectional details of furniture blocks.
Uploaded by:
Eiz
Luna

