Kitchen construction plan detail
Description
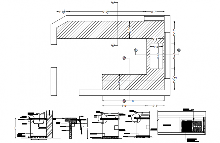
Kitchen construction plan detail. here there is top view model detail of a furniture of kitchen an dits plumbing detail is also shown in auto cad format
Uploaded by:
Eiz
Luna
Kitchen construction plan detail. here there is top view model detail of a furniture of kitchen an dits plumbing detail is also shown in auto cad format
Uploaded by:
Luna