House first floor plan, elevation and foundation detail
Description
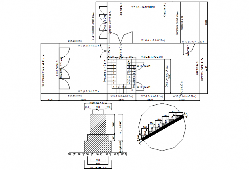
Autocad drawing of house floor plan, elevation and foundation detail showing all the required details like area description with dimensions, exposed brick elevations, wall thickness with door-window dimensions, typical foundation section, etc.
Uploaded by:
Eiz
Luna

