Housing apartment drawings 2d view floor plan elevation and section autocad file
Description
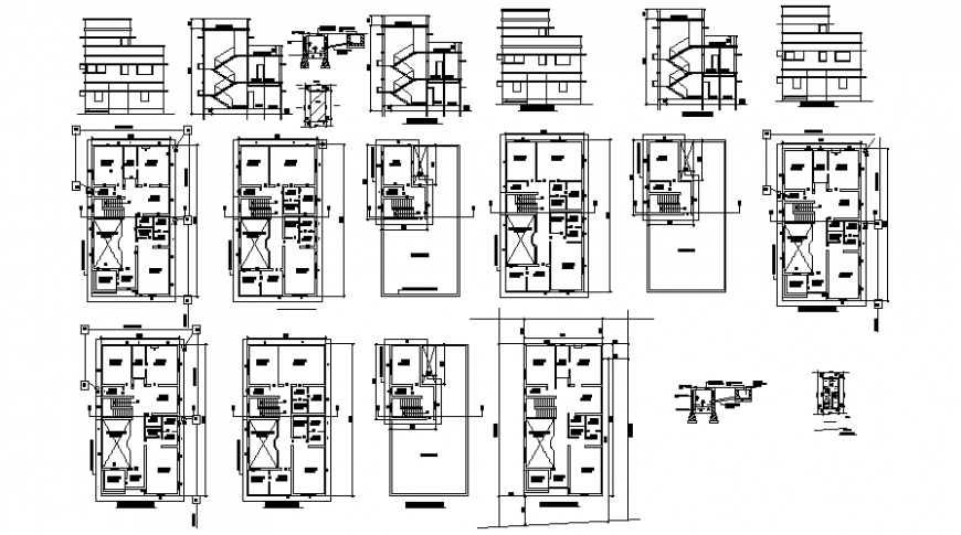
Housing apartment drawings 2d view floor plan elevation and section autocad file that shows house wok plan drawings details with room dimension details and house different sides of elevation and sectional details. Room details include details of drawings room bedroom kitchen and dining area sanitary toilet and bathroom plan.
Uploaded by:
Eiz
Luna
