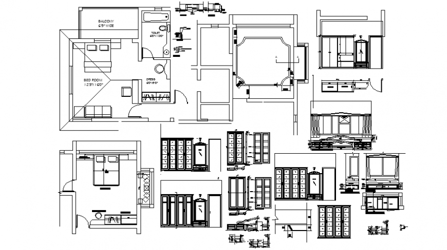
Drawings 2d view layout floor plan of house autocad file
Description
Drawings 2d view layout floor plan of house autocad file that shows house wok plan drawings details with room diemnsion detaisl and Room details includes details of drawings room bedroom kitchen and dining area saniatry toilet and bathroom plan.Furniture layout details and staircase details also shown in drawings.
Uploaded by:
Eiz
Luna

