Drawings details of housing apartment 2d view floor layout plan dwg file
Description
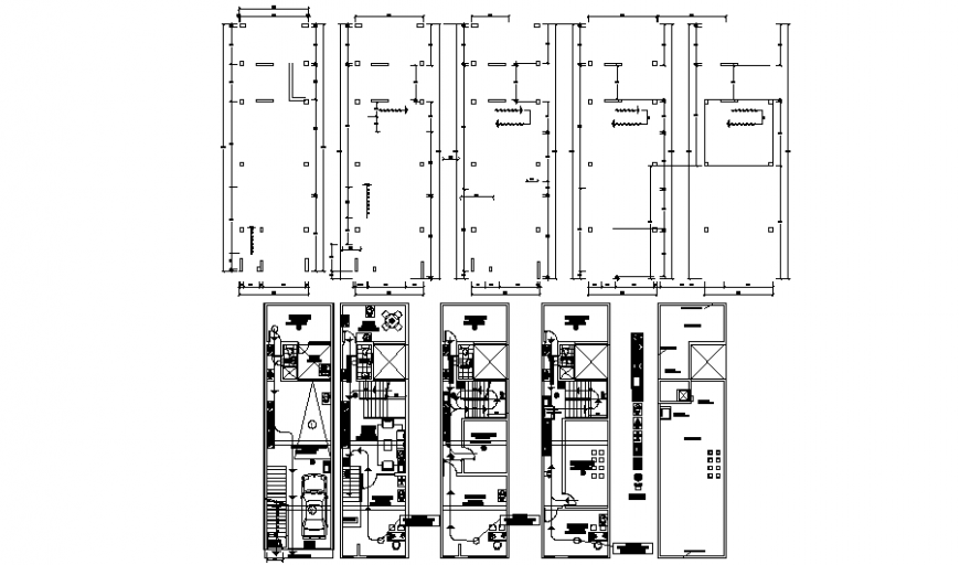
Drawings details of housing apartment 2d view floor layout plan dwg file that shows roofing structure details along with floor level details and house elevation sectional details. Room details include details of drawings room bedroom kitchen and dining area sanitary toilet and bathroom plan. Furniture layout details and staircase details are also shown in drawings.
Uploaded by:
Eiz
Luna

