Column construction installation plan drawings 2d view autocad file
Description
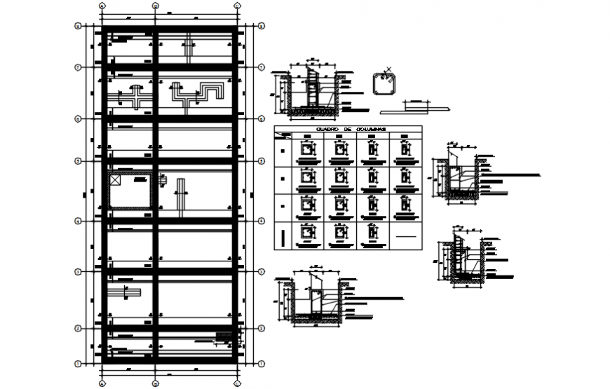
Column construction installation plan drawings 2d view autocad file that shows reinforcement details in tension and compression zone with main and distribution hook up and bent up bars details. Effective cover and stirrups details to hold up bar in position with other RCC structural blocks details. Specification details with column and beam structure details also included in drawings.
Uploaded by:
Eiz
Luna

