Two story house layout floor plan CAD drawings autocad file
Description
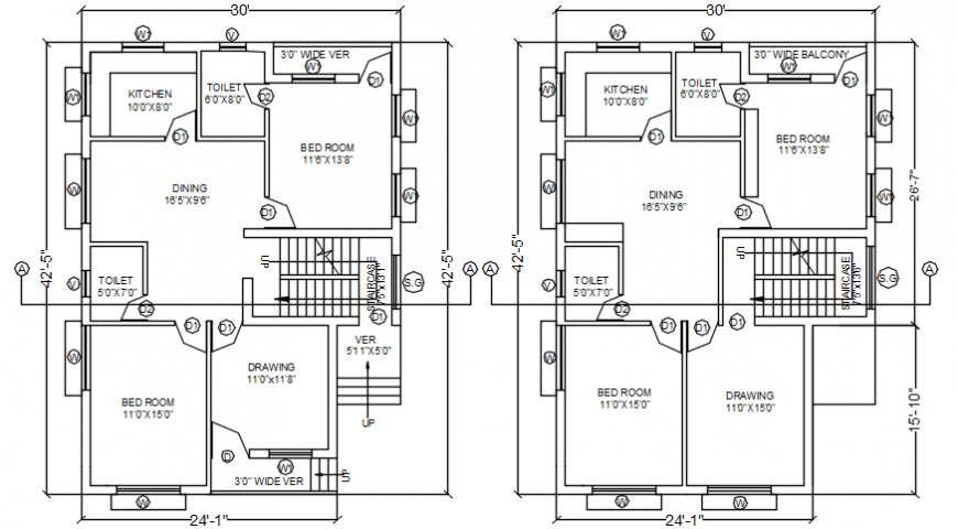
Two story house layout floor plan CAD drawings autocad file that shows house floor plan details with furniture layout details and floor level details. Dimension hidden line details with room details of drawings room bedroom kitchen dining area with sanitary toilet and bathroom area details. Section line and staircase details also included in drawings.
Uploaded by:
Eiz
Luna

